rainer köberl: christl stigler im schatten
Ihr „Be Be“ – ein Kleinod!
In Friedrich Achleitners immer noch unvergleichlichem, gut strukturierten, einfach gestalteten und tiefschürfenden Architekturführer „Österreichische Architektur im 20. Jhd., Band 1: Oberösterreich, Salzburg, Tirol, Vorarlberg“ aus dem Jahr 1980 findet man Gastronomielokale von Lois Welzenbacher, Franz Baumann und Siegfried Mazagg, Horst Parsons „Down Town“ (1971), Josef Lackners „Orangerie“ (1973) sowie seine Nachtbar „Irgendwo“ (1976). Doch Christl Stiglers „Be Be“-Bar von 1966 in der Museumstraße 1 findet man nirgendwo. (1) Peter Thurners Juweliergeschäft „Duftner“, direkt gegenüber auf der anderen Straßenseite, ist dagegen ausführlich erwähnt. (2)
Vom „Be Be“ erkennt man heute nur mehr markante Reste der Fassade – eine ungerahmte Öffnung (Glastüre) und raumhohe, horizontal angeordnete Alu-Profile (7 x 8 cm) im Abstand von 11 cm mit Glas dazwischen, die ums Eck in den Innenraum führen. Darüber ursprünglich feine Lamellen für Zu- und Abluft und davor montiert das kräftig weiße „Be Be“-Logo. Die Bar wurde aus den verschiedenen Funktionen, der gewünschten, durchlässigen und leichten Abschirmung des Innenraums und wegen des organischen Übergangs von Außen nach Innen entwickelt – kein „Portal“, sondern eine abstrakte Struktur, die sich zwar klar aus dem Umfeld löst, dieses durch ihre Horizontalität jedoch sensibel einbindet. Im Inneren findet man hinter noch sichtbar gemauerten, gestuften Übergangslaibungen die immer noch originalen Toilettentüren aus 10 mm starken Alu-Tafeln.
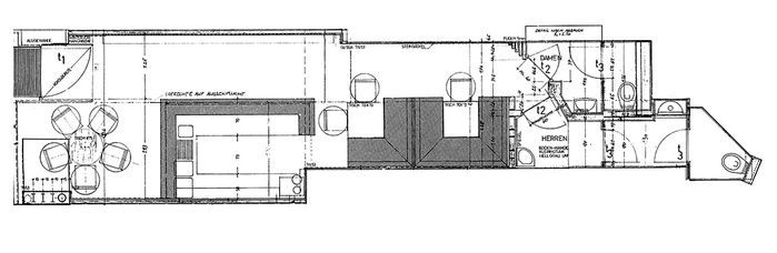
Diese Bar wurde ursprünglich nach Abbruch einer nicht mehr benötigten internen Treppe eines großen Textilgeschäfts in dieses „Treppenhaus“ hineingebaut. Straßenseitig 3,20 m, im hinteren Bereich 2,40 m breit und bis zu den WCs ca. 10 m tief. Vorne ein geräumiger runder Tisch, dann die Bar, danach zwei Sitznischen. In den 3,90 m hohen Raum wurde auf 2,70 m eine Decke eingezogen, wobei der entstandene Zwischenraum sowohl als Lager als auch als Raum für Lüftungsgeräte genutzt wurde.
Die Decke aus sichtbar belassenen, Mann an Mann verlegten „Katzenbergerträgern“ (3), auch als Fortführung der „Lichtstrukturierung“ durch die Fassade, kontrastierte mit den leicht gewellten Flächen aus Drahtglas vor weißen oder grau gemalten Wänden, sowie den Aluminium- und Chromflächen – je nach Funktion geordnet – und dem warmen braunen Leder für Bänke, Sessel und Barhocker. Alles auf schwarzem Schieferboden und hinten, nach den kräftigen, gemauerten Betonsteinlaibungen und den Alutafeltüren, die WCs in hellgrauem Kleinmosaik.
Ich wäre gerne einmal im Original drinnen gesessen, habe aber leider nur „hineingespechtelt“, vielleicht hat mir das Klientel damals nicht gefallen. Jedenfalls war diese Arbeit Christl Stiglers ein Highlight in Innsbruck, vielleicht sogar bedeutender als die sehr wohl beachteten Gasträume ihrer Kollegen. Seit ca. einem Jahr wird die völlig veränderte Bar – nun das „brooks“ – von einer sympathischen jungen Truppe bespielt und hat immer noch eine „prinzipielle“ Barqualität, die aus dem Grundriss (4) entsteht. Nach Corona sicher einen Besuch wert!
(1) Sehr wohl findet man in Achleitners Führer Christl Stiglers schönes Haus Faistenberger in Gstill 13, Patsch
(2) Dieses Geschäft gibt es immer noch. Man müsste nur die bemalten Betonfertigteile von ihrer Farbe befreien, die schönen grünen Samtpolster in die Schaufenster legen und es wäre wieder der noble Juwelier.
(3) Die heute noch existierende Firma Katzenberger entwickelte Beton-Fertigteildeckensysteme, welche aus Trägern und verschiedenen Einhängeelementen aus Beton bestanden, die, sichtbar belassen, gerne von Architekten verwendet wurden, vielleicht gar immer noch gerne verwendet werden würden ;-)
(4) Nebenbemerkung zum „Grundriss“: Eine junge Architektin, die in einem berühmten Architekturbüro arbeitet, meinte kürzlich: „Wie lernt man denn gute Grundrisse zu entwickeln. Das haben wir nie gelernt.“
buchempfehlung
Peter Walder-Gottsbacher „Vom Wirtshaus zum Grand-Hotel“, erschienen im Studien Verlag
christl stigler (1930 – 2019)
geb. 1930 in Bludenz; aufgewachsen im Pinzgau, in Wien und in Salzburg; 1949 – 50 Malereistudium an der Kunstgewerbeschule Graz; 1950 – 57 Architekturstudium an der TU Graz; 1955 Eheschließung mit Wilhelm Stigler jun.; 1955 – 63 Gestaltung von Schaufenstern und Messestände, vorwiegend für Brown-Boveri; ab 1956 ständige Mitarbeiterin im Büro Stigler, wo sie v. a. für die Entwürfe zuständig war; 1965 ZT-Prüfung; 1978 Vereidigung zur Ziviltechnikerin (volle Befugnis); ab 1999 allmähliche Auflösung des Büros; verstorben 2019 in Innsbruck
bauten (Auswahl)
1965/66 Schuhhaus Koller (mit W. Stigler jun.), Schwaz; 1966 Café Be Be, Innsbruck; 1967/68 Sonderschule der Benediktinerinnen (mit W. Stigler jun., W. Stigler sen.), Martinsbühel, Zirl; 1972 Länderbank, Innsbruck; 1972/73 Haus Faistenberger Patsch
Text: Rainer Köberl, aus aut: info 1/2021
