form follows function
Vorgefunden wurde eine gebaute Maschine. Ursprünglich präzise konzipiert von dem auf Brautechnik spezialisierten Maschinenbauprofessor Theodor Ganzenmüller aus München. Die komplexen Funktionen sind innerhalb eines klaren, sich nach oben – eben aus funktionalen Gründen – zurückstufenden Prismas angeordnet.
An diesem speziellen Ort wurde die Brauerei völlig außerhalb damaliger brautechnischer Konventionen vertikal organisiert, wobei Platzmangel der Grund für die unübliche, jedoch logische Konzeption war. Der Brauprozess funktionierte, nachdem das „Material“ zum obersten Punkt befördert wurde – welcher als „Laterne“ sichtbar ist – von oben nach unten. Vertikale „Füllvorgänge“ wechselten mit horizontalen „Verteilvorgängen“ und mündeten in den großen offenen Raum des Kochens und Siedens. Hermetische Behälter für Wasser, Getreide und Malz waren dazwischen geschaltet.
function follows form
„Sobald das Leben in genauen Formen festgehalten war,
ergaben sich auch die Möglichkeiten ihrer Veränderung.“ (Aldo Rossi)
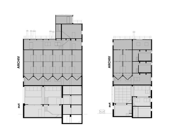
Die beiden Funktionen „Archiv“ und „Forum“ ordneten sich von Anfang an analog in die vorhandene Struktur ein. Im Bereich der Silos – oben – das „Archiv“, im Bereich des Kochens und Siedens – unten – das „Forum“. Die jeweiligen internen Erschließungen wurden prinzipiell ebenso von oben nach unten organisiert, wobei kleine ergänzende Räume über der jeweiligen Hauptzugangsebene liegen. Die ehemals hermetisch geschlossenen Räume des Bestandes – Silos und Wasserbehälter – wurden minimal geöffnet und in die neue Nutzung integriert. Auch durch den Erhalt der ursprünglich funktional notwendigen Oberflächen dieser Räume – blanker Beton und Teeranstrich, der durch Kunstharz ersetzt wurde – prägen nun diese ehemals nicht erlebbaren Behälter das „revitalisierte“ Gebäude auf ganz eigenartige Weise. Die früher durch Kessel und Pfannen besetzten vier großen runden Öffnungen wurden – entgegen der Vorgangsweise bei den Behältern – zwar verschlossen, bleiben aber deutlich lesbar und vor allem wieder öffenbar.
Besonders durch die Integration der Silos entsteht ein „Raumplan“ – zwar nicht im Loos´schen Sinn, aber ähnlich so komplexen Strukturen wie Koolhaas´ ZKM Projekt für Karlsruhe – jedoch auf den minimalen Grundmaßen von 12 mal 18 Metern.
Die räumliche Struktur, ihre inhaltliche Trennung und Ergänzung wie auch die unterschiedlichen Charaktere der Ausstellungsbereiche evozieren ein nach innen und außen gerichtetes diskursives Bespielen. Eine weitere Schicht legt sich über die ehemalige Maschine. Unsere Arbeit führte uns immer näher an den Bestand, obwohl Respekt, aber keine konservierende Haltung unsere Arbeit vorerst dominierten. Eher war es uns wichtig, folgerichtige Entscheidungen – der Reihe nach – zu treffen, die gezwungenermaßen in Beziehung zum Vorhandenen treten mussten. Denkmalschutz war Ergebnis, nicht Absicht.
das unsichtbare
Der erste Entwurf im Auftrag des Architekturforum Tirol und der Universität Innsbruck entstand Anfang 2000. In weiterer Folge änderten sich Auftraggeber und zuständige Behörde zweimal. Die Vorschreibungen der beiden Behörden waren diametral entgegengesetzt. In wechselnden Rollen als „good guy“ und „bad guy“ wurden das bestehende Stiegenhaus im Unterschied zu bereits erfolgten Planungen „gerettet“ und zahlreiche „Eingriffe“ abgewehrt. Das Ergebnis – versehen mit Schleusen zu allen Haupträumen und der Trennung von Stiegenhaus und Lift – war strukturell und architektonisch unbefriedigend, aber ein Bescheid für den Baubeginn erwirkt. Auf unser Risiko beauftragten wir das „Institut für Brandschutztechnik und Sicherheitsforschung“ in Linz mit der Erstellung eines Brandschutzkonzeptes, das als Ergebnis die Sinnhaftigkeit einzelner Vorschreibungen des Baubescheides in Zweifel zog. Eine zweite Einreichung auf Basis des Gutachtens führte nun zu einem neuen – alle befriedigenden – Baubescheid.
die sieben wichtigsten entscheidungen
1. Anfänglich wurde die ganze Silostruktur entfernt und durch eine Stahlkonstruktion ersetzt. Die Aufforderung zu Kostenreduktion führte stufenweise zum Erhalt der Silos und ihrer raumprägenden Trichter (diese wurden für diverse technische Installationen genutzt). Das Aufschneiden der Silowände an ihren Kreuzungspunkten machte diese Räume zugänglich.
2. Diese Entscheidung führte zum Erhalt aller ehemaligen Wasserbehälter – der wunderbaren schwarzen Becken.
3. Einmal, anlässlich der Diskussion um die Verkleidung des Liftschachts, wurde das „Schwarz-Weiß-Thema“ als das dem Bau entsprechende Farbkonzept bestimmt.
4. Lange Zeit hatte der direkte Zugang von der verkehrsreichen Südbahnstraße her seinen Reiz. Einmal – bei einem Besuch aus Wien –, als die absurde Ecke in der Südbahnstraße angesprochen wurde und die Erklärung im Hals stecken blieb, mutierte danach der alte Eingang wieder zum Haupteingang. In weiterer Folge wurden alle erforderlichen Zugänge und Fluchtwege an der Hofseite zusammengefasst. Damit entstanden wichtige und notwendige Nebenräume für das aut.
5. Die vier großen runden Öffnungen wurden im Laufe des Planungsprozesses unterschiedlich geschlossen – komplett mit Gittern, Glas usw. – bis die Entscheidung fiel, einfach Holzbohlen zu verwenden, die auch fallweise entfernt werden können und das Provisorische der Baustellensituation veredelt nachstellen.
6. Die Unterfangung der Nordwand des großen Raumes, der so genannten „lounge“ – der massivste Eingriff in den Bestand – brachte Offenheit zum Büroteil des aut. Und in letzter Sekunde entstand im Übergangsbereich zwischen öffentlicher und privaterer Zone eine Miniinfrastruktur für Essen und Trinken.
7. Eine Zwischendecke, ehemals vermutlich aus „wohnlichen“ Gründen abgehängt, da der manchmal des Nachts anwesende Braumeister dort schlief, wurde „dann doch entfernt“. Diese Maßnahme gibt dem jetzigen Bibliotheksraum – in der vertikalen Baukörperdiagonale der „lounge“ gegenüberliegend – die eigentlich gebaute Höhe „zurück“.